August 7, 2023

3.028 – BB800 8 inch BuildBlock Stem & Log Wall 2 (PDF)

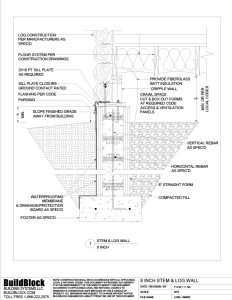
The following detail contains our 8 inch straight block on a log wall

File Size: 161 KB
Categories: 03. Foundations, CAD, BIM & Construction Details
Tags: 203mm, 8, 8in, anchor bolt, bb-800, concrete, eight, flashing, ICF, insulating concrete form, Log, log wall, parging, pdf, Rim Joist, Sill Plate, standard, Straight, Waterproofing, wood floor


By browsing this website, you agree to our privacy policy.
I Agree