August 7, 2023

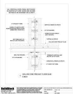
4.020 – BB600 6 inch Hollow Core Precast Floor Slab, Interior Bearing Wall (PDF)

The following detail contains our 6 inch straight block on a hollow core precast floor on slab with a interior bearing wall

File Size: 137 KB
Categories: 04. Floor Connections & Transitions, CAD, BIM & Construction Details
Tags: 152mm, 6?, 6in, backfill, bearing wall, dowels, hollow core, ICF, insulating concrete form, interior, parging, pdf, precast floor, six, slab, standard, Straight, topping, Waterproofing


By browsing this website, you agree to our privacy policy.
I Agree