August 7, 2023

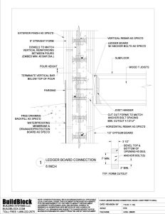
4.036 – BB600 6 inch Ledger Board Connection, Wood I Joist Perp to Wall (DWG)

The following detail contains our 6 inch straight block in a ledger board connection on a wood i joist perpendicular to wall

File Size: 203 KB
Categories: 04. Floor Connections & Transitions, CAD, BIM & Construction Details
Tags: 152mm, 6?, 6in, anchor bolt, backfill, connection, dowels, dwg, gypsum, ICF, insulating concrete form, joists, ledger board, lumber, parallel, parging, perp, six, standard, Straight, subfloor, Waterproofing, wood joists


By browsing this website, you agree to our privacy policy.
I Agree