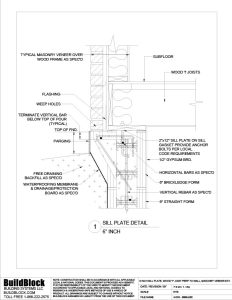
4.039 – BBBL600 6 inch Sill Plate Detail, Wood I Joist Perp to Wall, Masonry Veener Extension (DWG)

The following detail contains our 6 inch brickledge block on a sill plate wood I joist perpendicular to wall with masonry veener

Categories: 04. Floor Connections & Transitions
Tags: 152mm, 6?, 6in, backfill, brick, Brickledge, dwg, flashing, ICF, insulating concrete form, Masonry, masonry veener, parallel, parging, Sill Plate, six, standard, Straight, subfloor, Waterproofing, weep holes, wood i joist, wood i joists


By browsing this website, you agree to our privacy policy.
I Agree