August 7, 2023

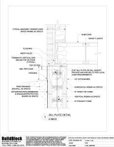
4.042 – BBDT600 6 inch Sill Plate, Wood I Joist Parallel to Wall, Masonry Veener Extension (PDF)

The following detail contains our 6 inch taper top block on a sill plate wood I joist parallel to wall with masonry veener

File Size: 133 KB
Categories: 04. Floor Connections & Transitions, CAD, BIM & Construction Details
Tags: 152mm, 6?, 6in, backfill, bb-6dt, flashing, ICF, insulating concrete form, Joist, Masonry, masonry veener, parallel, parging, pdf, Sill Plate, six, standard, Straight, subfloor, taper top, Waterproofing, weep holes, wood joists


By browsing this website, you agree to our privacy policy.
I Agree