August 7, 2023

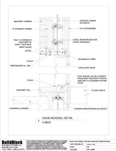
5.001 – BK600 6 inch Door Head Sill, BuildBuck Masonry Veener Ext (DWG)

The following detail contains our 6 inch straight block along with our 6 inch buildbuck on a door head with masonry veener

File Size: 196 KB
Categories: 05. Window & Door Openings, CAD, BIM & Construction Details
Tags: 152mm, 6?, 6in, bb-600, bk, bk-600, Buck, bucking, build, BuildBuck, caulk, Door, dwg, flashing, floor joists, gypsym, Insulation, jamb, Lintel, masonry veener, opening, sill gasket, six, weep holes


By browsing this website, you agree to our privacy policy.
I Agree