August 7, 2023

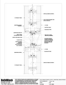
5.016 – BB600 6 inch Window Head Sill, Hardipanel Siding Exterior (DWG)

The following detail contains our 6 inch straight block on a window head with hardipanel exterior

File Size: 234 KB
Categories: 05. Window & Door Openings, CAD, BIM & Construction Details
Tags: 152mm, 6?, 6in, bb-600, bucking, caulk, dwg, hardipanel, jamb, metal angle, opening, plastic shim, Siding, sill flashing, six, vapor barrier, Window


By browsing this website, you agree to our privacy policy.
I Agree