August 7, 2023

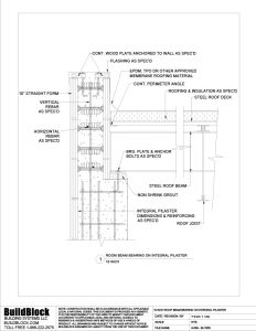
6.006 – BB1000 10 inch Roof Beam Bearing On Integral Pillaster (PDF)

The following detail contains our 10 inch straight block in roof beam bearing on integral pilaster

File Size: 166 KB
Categories: 06. Roof Connections, CAD, BIM & Construction Details
Tags: 10in, 254mm, bl-1000, flashing, ICF, insulating concrete form, Insulation, pdf, Pilaster, roof beam, roof deck, roof joist, Roofing, standard, Straight, ten, wood plate


By browsing this website, you agree to our privacy policy.
I Agree