August 7, 2023

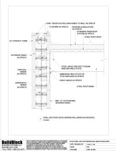
6.008 – BB1000 10 inch Steel Beam Roof, Bearing Wall Beam Face Mounted (DWG)

The following detail contains our 10 inch straight block placed in steel joist roof bearing wall with a beam face mounted

File Size: 333 KB
Categories: 06. Roof Connections, CAD, BIM & Construction Details
Tags: 10in, 254mm, bl-1000, dwg, face mounted, flashing, gypsum, ICF, insulating concrete form, Insulation, Roof, Roofing, standard, steel beam, steel roof, Straight, ten, wall beam, weld plate, wood plate


By browsing this website, you agree to our privacy policy.
I Agree