August 7, 2023

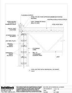
6.011 – BB800 8 inch Steel Joist Roof, Bearing Wall with no Parapet (PDF)

The following detail contains our 8 inch straight block placed in steel joist roof bearing wall with no parapet

File Size: 137 KB
Categories: 06. Roof Connections, CAD, BIM & Construction Details
Tags: 203mm, 8, 8in, bb-800, bearing wall, eight, flashing, gypsum, ICF, insulating concrete form, Insulation, pdf, Roofing, standard, steel joist, steel roof, Straight, wood plate


By browsing this website, you agree to our privacy policy.
I Agree