August 7, 2023

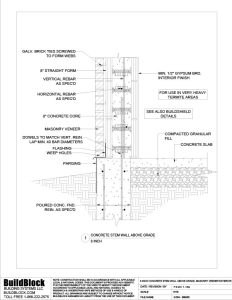
3.004 – BB800 8 inch Concrete Stem Wall Above Grade Masonry Veener Exterior (PDF)

The following detail contains our 8 inch straight block placed on a concrete stem wall with masonry veener exterior

File Size: 156 KB
Categories: 03. Foundations, CAD, BIM & Construction Details
Tags: 203mm, 8, 8in, above grade, bb-800, BuildShield, concrete, dowels, eight, exterior finish, foundation, ICF, insulating concrete form, masonry veener, pdf, standard, Stem Wall, Straight


By browsing this website, you agree to our privacy policy.
I Agree