August 7, 2023

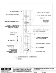
4.008 – BB600 6 inch Embedded Joist Connection, Lumber Joist Perp to Wall (PDF)

The following detail contains our 6 inch straight block on a composite steel deck slab with a interior bearing wall

File Size: 136 KB
Categories: 04. Floor Connections & Transitions, CAD, BIM & Construction Details
Tags: 152mm, 6?, 6in, Anchor, backfill, bolts, concrete, connection, dowels, embedded, gypsum, ICF, insulating concrete form, Joist, lumber, moisture barrier, nails, pdf, perpendicular, six, standard, Straight, subflor, Waterproofing, wood joists


By browsing this website, you agree to our privacy policy.
I Agree