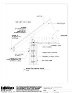
6.003 – BB600 6 inch Eave Roof Truss Hurricane Tie Down (PDF)

The following detail contains our 6 inch straight block placed in an eave roof truss with hurricane tie down

File Size: 162 KB
Categories: 06. Roof Connections, CAD, BIM & Construction Details
Tags: 152mm, 6?, 6in, bb-600, Burmon, eave roof, fascia, furring, gypsum, hurricaine, ICF, insulating concrete form, Insulation, pdf, rafter, Roofing, sheating, six, soffit, standard, Straight, tie down, Truss


By browsing this website, you agree to our privacy policy.
I Agree