August 7, 2023

1.606 – BK BuildBuck Bracing Recommendations (PDF)

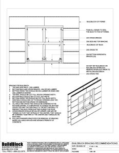
The following details consists of our builbuck product bracing recommendations

File Size: 279 KB
Categories: 01. General Forms, 1.6 Buck Forms, CAD, BIM & Construction Details
Tags: 102mm, 152mm, 204mm, 4?, 4in, 6?, 6in, 8, 8in, assembly, bk-400, bk-600, bk-800, Buck, bucking, build, build buck, BuildBuck, Door, eight, four, front, header, install, Installation, jamb, Lintel, opening, pdf, six, Window, window installation


By browsing this website, you agree to our privacy policy.
I Agree